






















Arhitectura si mobilare:
Amplasare:
Auvergne, Franța
Funcțiune:
rezidențial
Data finalizării:
septembrie 2023
Suprafaţa:
280 mp
Echipa de proiect:
Foto:
Descrierea proiectului:
Transformarea unei ferme vechi într-o locuință în Chamboirat
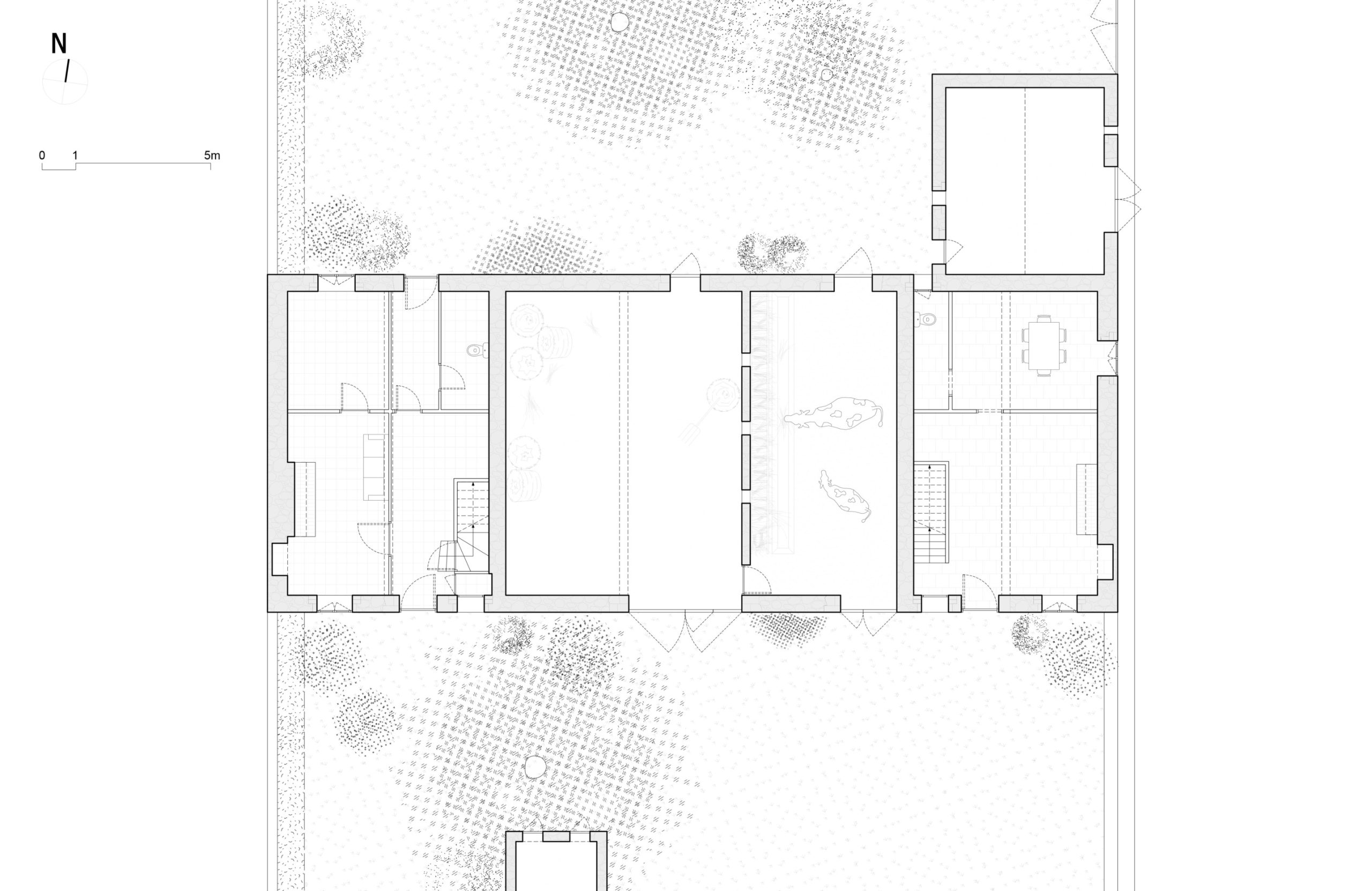
Scopul acestui proiect a fost transformarea unei ferme vechi într-o casă de familie în Chamboirat, un mic cătun din zona rurală a Auvergnei. Acest hambar vechi de două secole era un patrimoniu agricol comun în această parte a Franței. Odată intrați, am descoperit caracterul excepțional al acestei construcții: ziduri de piatră de 9 metri înălțime, o structură de lemn complexă și volume fantastice. Întregul loc evidenția o materialitate remarcabilă. Când clientul nostru ne-a împărtășit dorința sa de a transforma locul într-o casă în care să se adune familia pentru mulți ani, am fost de acord că această intervenție ar trebui să respecte în primul rând caracterul distinctiv al locului.
Pentru a realiza acest lucru, am optat în primul rând pentru o atentă și subtilă reabilitare, care să asigure continuitatea unei culturi de construire tradiționale în detrimentul intervenții brutale. Din acest motiv, am pus accentul pe utilizarea materialelor locale, procesate minimm și a tehnicilor artizanale, inspirate de măiestria folosită în construcția originală a clădirii în urmă cu două sute de ani. Zidurile de piatră au fost stabilizate prin rostuire cu var și reparații punctuale folosind pietre tăiate, apoi acoperite cu izolație din var și cânepă, finisate cu un amestec de var și nisip. Structura existentă, păstrată până la contrafișe, a fost completată cu noi grinzi de stejar, căpriori și dulapi, tratate pentru a asigura un aspect unificat între părțile vechi și noi.
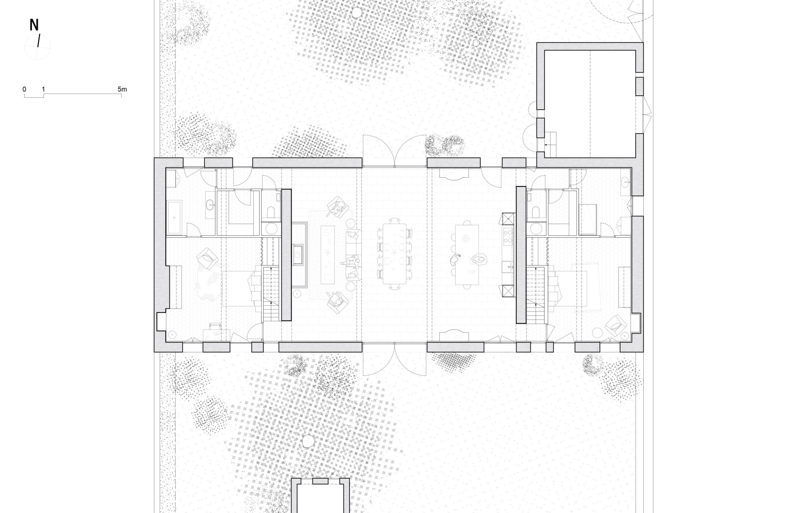
Transformarea acestui edificiu agricol într-un loc de adunare al familiei, a necesitat crearea unui spațiu central mare unde întreaga familie să se poată reuni. Prin urmare, am îndepărtat peretele grajdului care împărțea zona centrală în două, permițând un volum deschis care cuprinde spațiile comune: bucătăria, sufrageria și livingul. Pentru a deschide această zonă către grădina din spate, am creat o mare deschidere în fațada nordică, oglindind poarta existentă pe fațada sudică. Această nouă deschidere a fost realizată cu stâlpi de piatră tăiată și grinzi mari de stejar masiv. În exterior, singurele modificări la fațade au fost adăugarea de obloane de lemn albe și ferestre de stejar vitrificate, în timp ce învelișurile exterioare existente și pietrele expuse au fost intenționat lăsate așa cum erau.
În cele din urmă, toate dormitoarele și băile au fost plasate în aripile estice și vestice, care erau anterior locuibile. Au fost realizate patru deschideri în pereții despărțitori pentru a le conecta cu zona centrală. Acești pereți despărțitori au fost refăcuți, de asemenea, cu piatră cioplită și rostuită astfel încât să fie vizibilă în interior, reflectând materialitatea peretelui grajdului îndepărtat.
O serie de acțiuni țintite ne-au permis să oferim edificiului longevitate și confort fără a-i trăda natura.
Architecture:
Location:
Auvergne, France
Principal use :
private residence
Completion:
2023
Area:
Project Team:
Photograph:
Description:
Transformation of an ancient farmhouse into a home in Chamboirat
Acest proiect demonstrează cum intervențiile bine gândite pot transforma clădirile vechi în spații funcționale și atractive, fără a pierde din farmecul original. Este un exemplu de respect și inovație în arhitectură. În transformarea fermei vechi într-o locuință, arhitecții au îmbinat armonios mai multe stiluri arhitecturale, creând o locuință modernă, dar cu accente rustice.
Arpad Zachi
Un menuet
Atunci când solicităm proiectele pentru una din temele revistei, răspunsul, atunci când există, este de obște unul pragmatic, tehnic, în limitele unui limbaj politicos, convențional (evident că la fel sunt și srisorile noastre către ei). În ultimii ani, secțiunea de proiecte este subsumată temei numărului, o temă neconvențională și provocatoare pentru domeniul arhitecturii. Și asta tocmai în ideea de atrage atenția, a trezii nedumerirea, a stârnii curiozitatea arhitecților, astfel încât să simtă nevoia unui cât de mic dialog cu noi. Ceea ce se rezumă, și asta foarte rar, la solicitarea unor lămuriri privind legătura, pe care o întrevedem noi, dintre temă și proiectul lot. Mai departe dialogul se consumă în tăcere, în singurătatea fiecăruia. Așa a procedat și Gabriel Verret. I-am răspuns că: „o conexiune între temă și casa lor s-ar putea să existe doar în imaginația mea (deși, sper să nu fie așa). Pentru mine contează, de cele mai multe ori, prima impresie. În cazul proiectului lor, am resimțit o anumită vibrație, am deslușit un murmur ca o melodie, am întrevăzut o interpretare sensibilă și personală a unei partituri arhicunoscute și banale. Micul Prinț spune: „ ... trezim acest puț și el cântă... ”[1]. A apreciat acest răspuns „profund și poetic” și mi-a trimis două CV-uri scurte și un Kit de presă. Din astea am putut deduce interesul și preocuparea lor, pe de o parte, pentru teoria și istoria arhitecturii (o cultură profesională solidă), iar pe de altă parte, pentru materialele, tehnicile și meșteșugurile tradiționale. Ei scriu:
„Atenția acordată sitului, istoriei sale, utilizărilor sale și locuitorilor săi, modelează munca noastră pe măsură ce scara proiectelor a crescut. Această înțelegere a „locului” continuă să ne ghideze în alegerea resurselor pe care le mobilizăm pentru proiectele noastre. Dincolo de aspectul ecologic, utilizarea materialelor locale, biocompatibile sau recuperate, ne oferă oportunitatea de a sprijini transformarea unui loc respectând caracterul său unic. Implementarea acestor materiale necesită, de asemenea, uneori abilități noi, sau altele ori, unele adesea. De aceea, meșteșugarii și artizanii ocupă un loc central în procesul nostru de proiectare. Credem că implicarea expertizei lor în actul de construcție, încă de la începutul lucrărilor, contribuie la păstrarea originalității și autenticității acelui loc”.
După mine, așa cum un text bun trebuie să curgă atunci când îl citești, să urmeze un fir melodic (să aibă o melodie proprie[2]), așa și o casă adevărată trebuie să-ți spună sau să-ți inspire o poveste iar tu să ai disponibilitatea, capacitatea și libertatea de a citi sau a-ți imagina acea poveste.
Cum au reușit Axel Cornu și Gabriel Verret să facă acest lucru, transformând o obișnuită construcție de fermă, veche de două secole[3], într-o casă familială ? Prin ordonarea elementelor spațial-temporale, fixarea și centrarea acestora, pentru coerența demersului, asta pe de o parte, iar pe de altă parte, prin re-compunerea și reansamblarea elementelor stilistice și funcționale, orientarea și direcționarea acestora, pentru consistența expresivității și a discursului. Nu știu dacă cele două axe de simetrie, au fost deliberat introduse ca și structură a compoziției sau sunt rezultanta unui decupaj simetric cu ușa hambarului, a demolării zidului despărțitor a grajdului, și a amenajării spațiului unic rezultat care cuprinde bucătăria, sufrageria și livingul, înșirate și centrate pe aceeași direcție. Nu știu nici dacă aceste axe existau, sub o formă sau alta, în mod latent în construcția inițială. Până la urmă, e mai puțin important să știm apartenența lor, semnificativ rămâne sau devine sensul și rostul lor în proiectul realizat. Astfel există un ax pe direcția sud-nord, care străbate casa și se pierde în zare, un ax vizual care deschide spațiul interior spre peisajul campestru exterior al platoului înalt al Masivului Central. Al doilea ax, scurt, perpendicular pe primul, este unul interuor și centrează și ordonează spațiul interior. El este suportul și a unui plan vertical de simetrie, un al treilea ax, cel vertical, care introduce și integrează dimensiunea temporală și culturală a locului dar și a focului.
Spațiul central prin dimensiuni, dar mai ales prin proporție, cu dominanta ei verticală, cu șarpanta vizibilă de lemn, cu pereții ei de piatră cioplită și rostuită, prin orientarea pe direcția vest-est, prin marcarea locului șemineului, te duce gândul la spațiul unei nave centrale dintr-o construcție ecleziastică din perioada romanică sau medievală. Ceea ce dă spațiului un aer de solemnitate, de eleganță reținută, un sens de înălțare spirituală. La asta contribuie: înșirarea liniară, pe axul transversal (antropic), a spațiilor funcționale și a mobilierului specific lor; paleta restrânsă de culori pale și naturale, toate ținând de un modernism minimalist în consonanță cu simplitatea, sobrietatea și asprimea materialităților medievale. Tot acest asamblaj readuce în memoria mea caracterul ceremonial al momentelor și locurilor de (re)întâlnire, adunare a membrilor unei familii și îmi susură în ureche sunetele unui menuet[4].
În contrast cu rânduiala (simetria) spațiului și a amenajării din axul central, pe margini sunt create câteva contrapuncte[5] prin dispunerea în mod liber și independent a unor obiecte singulare de mobilier (un scrin, un dulap, o biblitecă, de secol 18 sau 19), de câteva farfurii și vase ceramice, o sculptură de lemn. Astfel ele devin, din simple obiecte funcționale sau/și decorative, adevărate obiecte de artă. Obiecte de artă, nu în sensul formal sau instituțional, ci în unul sensibil, personal în care ele re-memorează și re-învie în noi o lume de gânduri și de sentimente, de trăire și de cunoaștere, ascunse în noi. Sincer să fiu, nu am realizat până acum ce consonanță[6] există între minimalismul (austeritatea medievală) și minimalismul modern[7].
Și un ultim lucru pe care vreau să-l relev, pe care îl înțeleg și îl pot accepta dar care tot îmi provoacă o disonanță cognitivă[8]. Acesta se referă la modul în care este păstrat și renovat exteriorul vetust, simplist și sărăcăcios, lipsit de personalitate și de farmec, în totală contradicție cu înțelegerea, priceperea, sensibilitatea și eleganța discretă a re-generării spațiului interior. De multe ori niște reguli și reglementări generate de cele mai bune intenții, de corectitudinea politică pot deveni contraproductive, funcționează ca niște bariere de netrecut în calea muzicalității și armoniei unei intervenții.
4K I. J. Paderewski - Minuet in G major Op 14 No 1 | Anna Lipiak
Sursa: DEX '09 (2009)
[3] Chiar dacă această construcție are o vechime de doar două secole, tipologia ei se poate regăsi undeva la începutul perioadei feudale. E vorba de un adăpost pentru animale (șură), fân, pentru depozitarea recoltelor, a uneltelor agricole și a sculelor de întreținere a acestora (hambar). Locuința, cum o numim noi astăzi, o anexă a spațiului principal și era mai curând un refugiu de vreme rea, și un sălaj peste noapte.
[4] MENUET, menuete, s. n. Numele unui dans de origine franceză, cu caracter ceremonios și mișcare moderată, devenit cu timpul dans de curte și apoi de salon; melodie după care se execută acest dans. ♦ A treia parte a simfoniei clasice. [Pr.: -nu-et. – Pl. Și: menueturi] – Din fr. menuet.
Sursa: DEX '09 (2009)
[5] CONTRAPUNCT s. n. 1. Tehnică în compoziția muzicală, constând în suprapunerea a două sau a mai multe linii melodice de sine stătătoare, având fiecare un înțeles propriu, dar formând laolaltă un tot organic; polifonie, contratemă. – Din it. Contrappunto, fr. Contrepoint.
Sursa: DEX '09 (2009)
[6] Consonanță, relație succesivă (mai ales) simultană de sunete a căror audiție produce o impresie agreabilă, de echilibru, destindere. Noțiunea rămâne cu precădere în sfera psihologicului, „impresia constituind” – cu tot caracterul ei subiectiv – elementul definitoriu al consonanței.
Sursa: DTM (2010)
[7] Îmi aduc aminte de vorbele lui Mihai Pienescu, colegul meu de redacție, „pentru mine Arhitectura este cea de până la Renaștere, și care re-începe cu Modernismul”.
[8] DISONÁNȚĂ (< fr., lat.) s. f. 1. (MUZ.) Lipsă de consonanță; relație între două sau mai multe sunete de înălțimi diferite, care, auzite simultan, produc o senzație de încordare, de instabilitate. 3. (PSIH.) D. Cognitivă = stare tensionată a subiectului (individului) generată de coexistența unor elemente de cunoaștere contradictorii privitoare la același subiect sau de dezacordul între atitudine și realitate. D. c. presupune un efort din partea individului pentru realizarea echilibrului cognitiv necesar.
Sursa: DE (1993-2009)
This project demonstrates how well-thought-out interventions can transform old buildings into functional and attractive spaces without losing their original charm. It is an example of respect and innovation in architecture. In transforming the old farm into a dwelling, the architects harmoniously combined several architectural styles, creating a modern home with rustic accents.
Arpad Zachi
A Minuet
When we request projects for one of the magazine's themes, the response, when it exists, is generally pragmatic, technical, within the limits of polite, conventional language (obviously, our letters to them are the same). In recent years, the project section is subsumed by the theme of the issue, an unconventional and challenging theme for the field of architecture. And this is precisely to draw attention, awaken bewilderment, and stir the curiosity of architects, so that they feel the need for even a small dialogue with us. This usually boils down to, very rarely, requesting clarifications regarding the connection, as we see it, between the theme and their project. Further dialogue is consumed in silence, in each person's solitude. This is also how Gabriel Verret proceeded. I replied that: "a connection between the theme and their house might exist only in my imagination (although, I hope not). For me, the first impression often counts. In the case of their project, I felt a certain vibration, I deciphered a murmur like a melody, I envisioned a sensitive and personal interpretation of a well-known and banal score. The Little Prince says: „... we awaken this well and it sings...”[1]. He appreciated this "profound and poetic" response and sent me two short CVs and a press kit. From these, I could deduce their interest and concern, on the one hand, for the theory and history of architecture (a solid professional culture), and on the other hand, for traditional materials, techniques, and crafts. They write:
"Attention to the site, its history, its uses, and its inhabitants shapes our work as the scale of projects has grown. This understanding of the 'place' continues to guide us in choosing the resources we mobilize for our projects. Beyond the ecological aspect, using local, biocompatible, or reclaimed materials gives us the opportunity to support the transformation of a place while respecting its unique character. Implementing these materials also sometimes requires new skills, or other times, some often. That's why artisans and craftsmen occupy a central place in our design process. We believe that involving their expertise in the act of construction, from the very beginning of the work, contributes to preserving the originality and authenticity of that place."
In my opinion, just as a good text should flow when you read it, following a melodic thread (having its own melody[2]), so too should a true house tell or inspire a story, and you should have the willingness, capacity, and freedom to read or imagine that story.
How did Axel Cornu and Gabriel Verret manage to do this, transforming an ordinary farm building, two centuries old[3], into a family home? By ordering the spatial-temporal elements, fixing and centering them for coherence, on the one hand, and by re-composing and reassembling the stylistic and functional elements, orienting and directing them for consistency in expressiveness and discourse, on the other. I don't know if the two axes of symmetry were deliberately introduced as part of the composition's structure or if they are the result of a symmetrical cut with the barn door, the demolition of the separating wall of the stable, and the arrangement of the unique resulting space which includes the kitchen, dining room, and living room, lined up and centered on the same direction. I also don't know if these axes existed, in some form or another, latently in the initial construction. In the end, it is less important to know their origin; what remains significant or becomes significant is their meaning and purpose in the realized project. Thus, there is an axis in the south-north direction that traverses the house and disappears into the horizon, a visual axis that opens the interior space to the exterior countryside landscape of the high plateau of the Massif Central. The second axis, short, perpendicular to the first, is an interior one and centers and orders the interior space. It also supports a vertical plane of symmetry, a third axis, the vertical one, which introduces and integrates the temporal and cultural dimension of the place as well as the fire.
The central space, through its dimensions, but especially through its proportion, with its vertical dominance, visible wooden framework, and its stone walls, oriented west-east, with the marked location of the fireplace, reminds one of the space of a central nave in a Romanesque or medieval ecclesiastical building. This gives the space an air of solemnity, restrained elegance, and a sense of spiritual elevation. Contributing to this are the linear arrangement on the transverse (anthropic) axis of functional spaces and their specific furniture; the limited palette of pale and natural colors, all belonging to a minimalist modernism in consonance with the simplicity, sobriety, and roughness of medieval materiality. This whole assemblage recalls in my memory the ceremonial character of moments and places of (re)meeting, gathering of family members, and whispers in my ear the sounds of a minuet[4].
In contrast with the order (symmetry) of the space and arrangement in the central axis, a few counterpoints[5] are created on the margins by freely and independently placing some singular pieces of furniture (a cabinet, a wardrobe, a library, from the 18th or 19th century), a few plates and ceramic vessels, a wooden sculpture. Thus, they become, from simple functional and/or decorative objects, true works of art. Works of art not in a formal or institutional sense, but in a sensitive, personal one in which they re-memorize and revive in us a world of thoughts and feelings, of living and knowing, hidden within us. To be honest, I hadn't realized until now what consonance[6] exists between minimalism (medieval austerity) and modern minimalism[7].
And one last thing I want to reveal a fact, which I understand and can accept it, but still causes me cognitive dissonance. This refers to the way in which the old, simplistic, and impoverished exterior is preserved and renovated, lacking personality and charm, in total contradiction with the understanding, skill, sensitivity, and discreet elegance of the regeneration of the interior space. Often, rules and regulations generated by the best intentions, by political correctness, can become counterproductive, functioning as insurmountable barriers in the path of the musicality and harmony of an intervention.
4K I. J. Paderewski - Minuet in G major Op 14 No 1 | Anna Lipiak
[Watch on YouTube](https://www.youtube.com/watch?v=590pzPl2iUI)
Source: DEX '09 (2009)
[3] Although this construction is only two centuries old, its typology can be found somewhere at the beginning of the feudal period. It was an animal shelter (barn), hay storage, for storing crops, agricultural tools, and maintenance tools (granary). The dwelling, as we call it today, was an annex to the main space and was rather a refuge from bad weather and an overnight shelter.
[4] Although this construction is only two centuries old, its typology can be found somewhere at the beginning of the feudal period. It was an animal shelter (barn), hay storage, for storing crops, agricultural tools, and maintenance tools (granary). The dwelling, as we call it today, was an annex to the main space and was rather a refuge from bad weather and an overnight shelter.
[5] COUNTERPOINT n. 1. Technique in musical composition, consisting of the superposition of two or more independent melodic lines, each with its own meaning, but forming together an organic whole; polyphony, counter-theme. – From Italian Contrappunto, French Contrepoint.
Source: DEX 09 (2009)
[6] Consonance, successive (especially) simultaneous relationship of sounds whose hearing produces an agreeable impression of balance, relaxation. The notion remains predominantly in the psychological sphere, "the impression constituting" – despite its subjective nature – the defining element of consonance.
Source: DTM (2010)
[7] I remember the words of Mihai Pienescu, my editorial colleague, "for me, Architecture is that which precedes the Renaissance and re-starts with Modernism."
[8] DISSONANCE (< fr., lat.) n. 1. (MUSIC) Lack of consonance; relationship between two or more sounds of different pitches, which, when heard simultaneously, produce a sensation of tension, instability. 3. (PSYCH.) Cognitive dissonance = a tense state of the subject (individual) generated by the coexistence of contradictory elements of knowledge regarding the same subject or by the disagreement between attitude and reality. Cognitive dissonance requires an effort from the individual to achieve the necessary cognitive balance.
Source: DE (1993-2009)
Susținut de / supported by

Proiect susținut de Ordinul Arhitecților din Romania din Timbrul de Arhitectură.
This project is supported by the Romanian Orders of Architects, from the Architectural Stamp Duty.
URMăTOR
© Copyright 2025 Fundația Arhitext Design